Insgesamt kommen acht Reihenhäuser im Typ A.1 zum Verkauf. Die Häuser verfügen über eine Wohnfläche von insgesamt ca. 129,36 m² und einer Nutzfläche von ca. 32,73 m², was einer Gesamtfläche von ca. 162,09 m² entspricht.
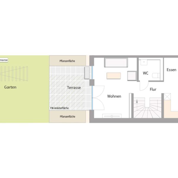
Die Häuser sind auf vier Ebenen verteilt. Im Untergeschoss betritt man durch den Hauseingang direkt den Flur, von dem aus eine Treppe in die Ebene E1 führt. Die Ebene E0 umfasst zusätzlich eine Garage sowie einen Abstellraum, in dem die Heizung und die Anschlüsse für Waschmaschine und Trockner untergebracht sind. In der Ebene E1 eröffnet sich ein großzügiger und offener Wohn-, Ess- und Küchenbereich, der direkten Zugang zur Terrasse und zum Gartenanteil nach Südwesten bietet. Auf dieser Ebene ist zusätzlich ein separates WC geplant. Über den Treppenaufgang gelangt man in die Ebene E2. In dieser Etage befinden sich zwei Schlafräume, welche durch das in der Mitte liegende Badezimmer getrennt werden. Das Badezimmer wird mit einer Badewanne und einer Dusche sowie einem WC und zwei Waschbecken ausgestattet. Das großzügige Studio mit Zugang zur Dachterrasse liegt im Dachgeschoss in der Ebene E3. Durch das Flachdach kann der Raum als vollwertiger Raum genutzt werden. Wer aus diesem großen Studio weitere Räumlichkeiten und ein zusätzliches Dusch/WC schöpfen möchte, kann den Ausbau als Sonderwunsch in Auftrag geben. Zusätzlich verfügen die Häuser über einen Außenstellplatz.
Austattung
• moderne Architektur
• zwei Parkmöglichkeiten pro Haus
• je Haus eine 230 V Steckdose in der Garage
• Wärmeversorgung mittels Luft-Wasser-Wärmepumpe mit Pufferspeicher zur Trinkwasserbereitung und Heizungsunterstützung
• Terrassen im EG mit einem Belag aus Terrassendielen im Aussehen holz ähnlicher Produkte
• Terrassen und Dachterrassen mit einem Anschluss für den Einbau einer elektrischen Markise
• frostsicherer Wasserhahn im Terrassen- und Dachterrassenbereich
• elektrische Rollläden
• Fußbodenheizung, zusätzlich ein elektrischer Handtuchheizkörper im Bad
• Türsprechanlage
• Q2-Spachtelung und Raufaser (mittlere oder grobe Körnung) im Standard, außer Nebenräume
• Sanitärgegenstände renommierter Hersteller
• Fliesen bis zu einem Format 60×60 cm
• Duschtrennwand aus Echtglas
• werkseitig weiß lackierte Holzinnentüren mit Edelstahl-Drückergarnitur
• gemeinschaftlicher Quartiershof
• Inkl. hochwertiger Einbauküche
Ausgenommen der Gartenfläche ist der Grundriss des Reihenmittelhauses Nr. 17 identisch mit den Grundrissen der Reihenmittelhäuser Nr. 18, 21 und 22.
Das Gebäude ist als Effizienzhaus 55 EE gebaut. Der Energieausweis ist erstellt.
Datenschutzhinweis:
Bitte beachten Sie, dass personenbezogene Daten zur Erfassung und Bearbeitung dieses Vorgangs aufgenommen werden können. Diese werden von der Böblinger Baugesellschaft mbH gemäß den Bestimmungen der DSGVO und des Bundesdatenschutzgesetzes 2018 (BDSG-neu) streng vertraulich behandelt. Weitere Informationen hierzu finden Sie in unserer Datenschutzerklärung unter:
Unsere ausführlichen Informationspflichten gemäß Art. 13 und 14 DSGVO entnehmen Sie bitte unter: https://www.bbg-boeblingen.de/datenschutz/Information
Lage
Von der Ihinger Straße / Am Steinbruch aus sind der Ortskern, verschiedene Einkaufsmöglichkeiten sowie Schulen und Kindertageseinrichtungen in gut einem Kilometer zu erreichen. In der Nähe des neuen Quartiers befinden sich zudem diverse Naherholungsmöglichkeiten. Die Bundesstraße B464 ist mit dem Auto in wenigen Minuten erreichbar. Zum Bahnhof gelangt man fußläufig in ca. 20 Minuten und mit dem Bus in ca. 7 Minuten. Vom Bahnhof erreicht man bequem mit der S-Bahn S60 über Renningen, Leonberg und Zuffenhausen in ca. 45 Minuten die Stuttgarter Innenstadt sowie Böblingen und Sindelfingen in ca. 10 Minuten.

