Das im Jahre 2008 errichtete Mehrfamilienhaus befindet sich im Richard-Nägele-Weg 1 in Böblingen, Wohngebiet Diezenhalde Die Wärmeversorgung der Wohnungen erfolgt über Fernwärme . Der Endenergieverbrauch liegt bei 63,8 kWh/(m²*a). Der Energieausweis liegt zur Besichtigung vor.
Der Zustand ist gut und entspricht dem Baujahr. Alle laufenden Instandhaltungsarbeiten wurden durchgeführt.
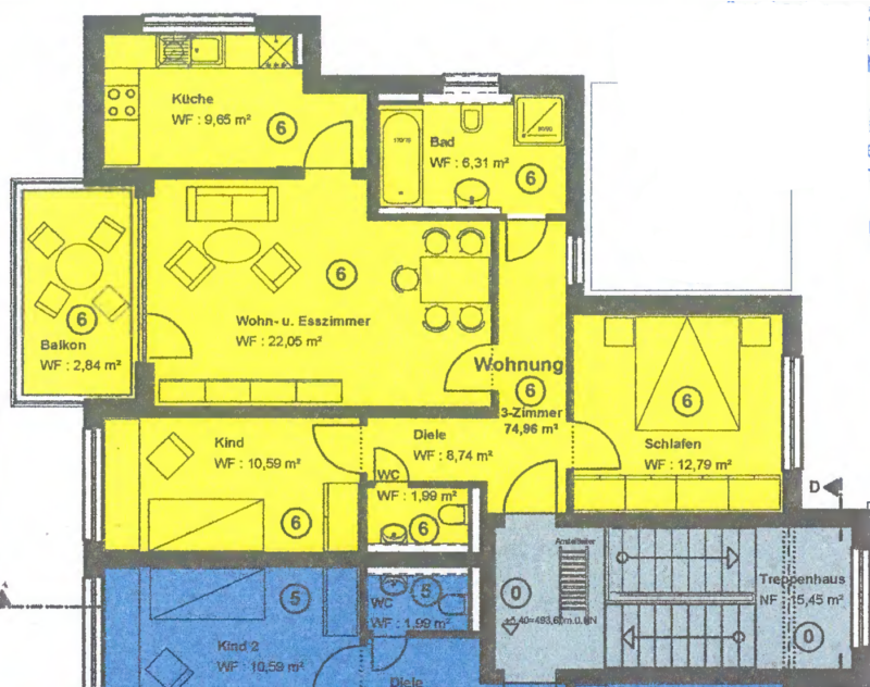
*ganz oben – Dachgeschoss ohne Dachschrägen
*Helle Räume sorgen für ein sonniges Wohnambiente
*Toller Balkon als Wohnraumerweiterung
*Vermietet, daher für Kapitalanleger (Eigenbedarfskündigung für 5 Jahre ausgeschlossen)
- 1 Stellplatz im Kaufpreis inkludiert
*Bei den Mieteinnahmen von 687,94 €handelt es sich um die Kaltmiete inkl. Stellplatz
Bis 2024 wurde keine Instandhaltungsrücklage gebildet, da die BBG seither im Eigentum aller Einheiten ist bzw war.
Eine Eigenbedarfskündigung wird für 5 Jahre nach Kaufpreiszahlung ausgeschlossen.
Keine Maklerprovision.

