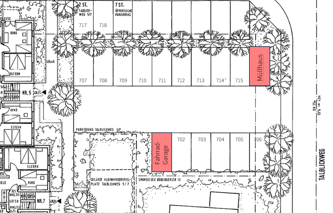
Das im Jahre 1991 errichtete 12-Familienhaus befindet sich im Talblickweg 5+7 in Dagersheim. Insgesamt kommen hier 6 Eigentumswohnungen mit 3-, 4- und 5-Zimmern sowie 15 Außenstellplätze zum Verkauf.
Die Beheizung der Wohnanlage erfolgt über eine Gas-Zentralheizung. Die Wärmeversorgung der Wohnungen erfolgt somit über Erdgas. Der Endenergiebedarf liegt bei 86,6 kWh/(m²*a). Der Energieausweis liegt zur Besichtigung vor.
Alle laufenden Instandhaltungsarbeiten wurden durchgeführt. Bis dato wurde keine Instandhaltungsrücklage gebildet, da die BBG alleiniger Eigentümer war.
Das Haus wurde 2018 umfangreich saniert. Folgende Maßnahmen wurden getroffen:
– Dach- und Dachgaubenerneuerung
– Fensteraustausch (inkl. Dachfenster)
– Dämmung der Kellerdecke
– Dämmung der Außenwände
– Fassadenanstrich
Außerdem wurde 2012 eine neue Schließanlage eingebaut und 2024 die Balkone teilweise saniert.




Lage
Der Stadtteil Böblingen-Dagersheim zeichnet sich durch eine sehr hohe Lebensqualität und gute Infrastruktur aus. Er weiß Wohnen, Arbeiten und Freizeit ideal zu verknüpfen: durch die Zugehörigkeit zu Böblingen profitieren Sie von kurzen Wegen zum Arbeitsplatz und schaffen sich so mehr Zeit für sich und Ihre Familie, die Sie durch zahlreiche Kultur- und Freizeitmöglichkeiten interessant gestalten können. Mit der örtlichen Grundschule sowie vier Kindergärten ist der Stadtteil bestens ausgestattet.
Unweit vom Objekt entfernt, befindet sich die Bushaltestelle „Dagersheim Haus der Gemeinde“. Hier erreicht man den Böblinger Bahnhof in nur 10 Minuten Fahrtzeit. Die S-Bahn S1 (Richtung Kirchheim (T)) bringt Sie in ca. 20 Minuten in die Stuttgarter Innenstadt. Wer gerne mit dem Auto fährt, erreicht die Autobahn A81 über die Bundesstraße B464 in nur wenigen Minuten. Von hieraus erreicht man sämtliche Standorte in kurzer Zeit. Der Stuttgarter Flughafen ist ca. 24 Kilometer von Böblingen-Dagersheim entfernt und durch eine dreißigminütige Autofahrt über die A81 und die A8 zu erreichen.
Die Einkaufsmöglichkeiten zur Deckung des täglichen Bedarfs sind unmittelbar zu erreichen.
Sonstiges
Bis dato wurde keine Instandhaltungsrücklage gebildet, da die BBG alleiniger Eigentümer vom kompletten Gebäude war.
Eine Eigenbedarfskündigung wird für 5 Jahre nach Kaufpreiszahlung ausgeschlossen.
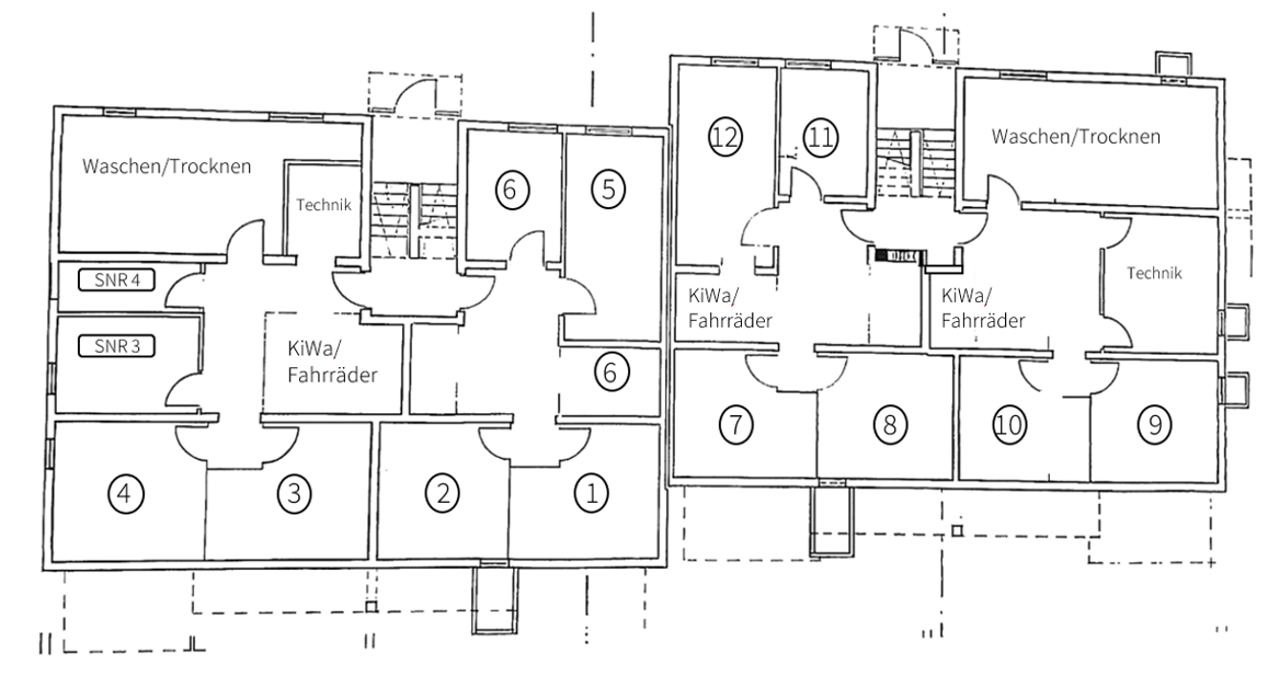
Im Untergeschoss sind zwei Kellerräume mit ca. 8,5 m² und 4,5 m² Nutzfläche, welche zusätzlich erworben werden können. Diese kosten 3.500,00 € bzw. 2.500,00 €.


