Insgesamt kommen acht Reihenhäuser im Typ A.1 zum Verkauf. Die Häuser verfügen über eine Wohnfläche von insgesamt ca. 129,36 m² und einer Nutzfläche von ca. 32,73 m², was einer Gesamtfläche von ca. 162,09 m² entspricht.
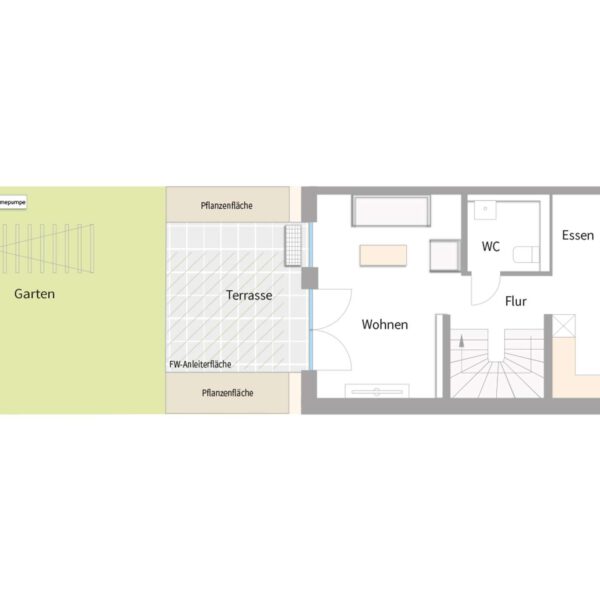
Die Häuser sind auf vier Ebenen verteilt. Im Untergeschoss betritt man durch den Hauseingang direkt den Flur, von dem aus eine Treppe in die Ebene E1 führt. Die Ebene E0 umfasst zusätzlich eine Garage sowie einen Abstellraum, in dem die Heizung und die Anschlüsse für Waschmaschine und Trockner untergebracht sind. In der Ebene E1 eröffnet sich ein großzügiger und offener Wohn-, Ess- und Küchenbereich, der direkten Zugang zur Terrasse und zum Gartenanteil nach Südwesten bietet. Auf dieser Ebene ist zusätzlich ein separates WC geplant. Über den Treppenaufgang gelangt man in die Ebene E2. In dieser Etage befinden sich zwei Schlafräume, welche durch das in der Mitte liegende Badezimmer getrennt werden. Das Badezimmer wird mit einer Badewanne und einer Dusche sowie einem WC und zwei Waschbecken ausgestattet. Das großzügige Studio mit Zugang zur Dachterrasse liegt im Dachgeschoss in der Ebene E3. Durch das Flachdach kann der Raum als vollwertiger Raum genutzt werden.

