Neuer Lieblingsort für Groß & Klein!
71155 Altdorf, Erdgeschosswohnung zum Kauf
Kontaktdaten
-
NameBöblinger Baugesellschaft mbH
-
AdresseWilhelmstraße 33
71034 Böblingen -
E-Mail Direkt
-
Tel. Durchwahl
Objektdaten
-
Objekt-IDA1 – EGrechts – AR-3
-
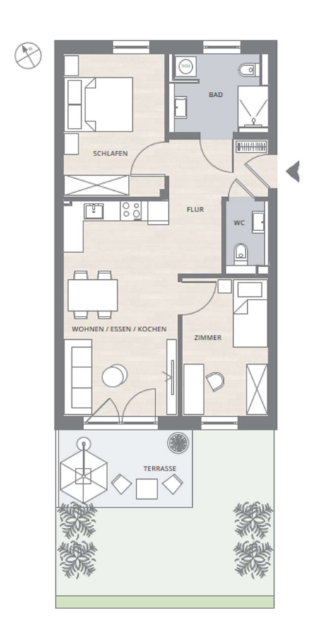
ObjekttypenErdgeschosswohnung, Wohnung
-
AdresseFinkenstraße .
71155 Altdorf -
EtageEG
-
Etagen im Haus2
-
Wohnfläche ca.65,68 m²
-
Zimmer3
-
Schlafzimmer2
-
Badezimmer1
-
Baujahr2027
-
ZustandErstbezug
-
Ausstattunggehoben
-
Stellplätze gesamt1
-
Tiefgaragenstellplatz25.000 EUR (Anzahl: 1)
-
Kaufpreis408.100 EUR
Ausstattung / Merkmale
- ✓ Balkon/Terrasse
- ✓ Garten/Gartennutzung
- ✓ Gäste-WC
- ✓ Keller
- ✓ Personenaufzug
Energieausweis
-
Energieausweisnicht vorhanden
Objektbeschreibung
Beschreibung
In attraktiver Lage von Altdorf entsteht in der Finkenstraße das moderne Wohnprojekt: Erlachwiesen – ein Ensemble aus zwei eleganten Mehrfamilienhäusern.
Drei Hauseingänge mit jeweils neun Wohnungen schaffen ein Zuhause, das Design, Komfort und Nachhaltigkeit perfekt miteinander verbindet.
Die 2- bis 4-Zimmer-Wohnungen mit Wohnflächen von ca. 44 m² bis 89 m² sind clever geschnitten und bieten Raum für Singles oder Senioren & Paare oder Familien, die modernes Wohnen schätzen.
Die Erdgeschosswohnungen überraschen mit sonnigen Privatgärten, die Platz für entspannte Stunden im Freien bieten.
Die Obergeschosswohnungen verfügen über großzügige Südbalkone, ideal, um den Tag mit frischer Luft und einem schönen Ausblick ausklingen zu lassen.
Ausstattung
Alle Einheiten überzeugen durch eine hochwertige Ausstattung und ein modernes, zeitloses Design.
Zum gehobenen Standard gehören unter anderem:
edles Echtholzparkett,
stilvolle Boden- und Wandbeläge,
ausgewählte Sanitärobjekte namhafter Hersteller,
sowie durchdachte Grundrisse mit viel Licht und Raumgefühl,
überdachte, große Balkone in Südausrichtung.
Komfortables Parken ist durch Tiefgaragenstellplätze und Außenstellplätze selbstverständlich gewährleistet.
Besonderen Wert legen wir auf ein zukunftsweisendes Energiekonzept.
Zum Einsatz kommen Luft-Wasser-Wärmepumpen für Heizung und Warmwasser sowie Photovoltaikanlagen, die umweltfreundlich Strom erzeugen.
Wie bei all unseren Projekten streben wir auch hier eine Zertifizierung der Deutschen Gesellschaft für Nachhaltiges Bauen (DGNB) an – für ein nachhaltiges und energieeffizientes Zuhause.
Sonstiges
Erlachwiesen – Zuhause ankommen. Wohlfühlen. Leben.
Jetzt Kontaktanfrage senden!
Keine Maklerprovision!
Lage
Die Gemeinde Altdorf im Landkreis Böblingen zählt rund 4.600 Einwohner und vereint naturnahes Wohnen mit hervorragender Anbindung. Am nördlichen Rand des Naturparks Schönbuch gelegen, eröffnet sich hier ein Umfeld aus grünen Wiesen und Feldern direkt vor der Haustür, während Supermarkt und weitere Einkaufsmöglichkeiten bequem erreichbar sind.
Die Umgebung mit Wäldern, Feldern und der Quelle der Würm prägt das idyllische Ortsbild. Trotz der ruhigen Lage profitieren die Bewohner von einer gut ausgebauten Infrastruktur und einer hohen Lebensqualität.
Für den täglichen Bedarf stehen Einkaufsmöglichkeiten im Ort bereit, größere Einkäufe lassen sich unkompliziert in Böblingen oder Sindelfingen erledigen. Über das regionale Busnetz ist Altdorf zudem bestens an die Bahnhöfe in Holzgerlingen und Ehningen angebunden. Von dort bestehen schnelle Bahn-Verbindungen nach Stuttgart und Herrenberg, was die Gemeinde besonders für Berufspendler interessant macht.
Sie sehen gerade einen Platzhalterinhalt von Google Maps. Um auf den eigentlichen Inhalt zuzugreifen, klicken Sie auf die Schaltfläche unten. Bitte beachten Sie, dass dabei Daten an Drittanbieter weitergegeben werden.
Mehr Informationen






